复旦大学附属儿科医院奉贤院区
项目位置:奉贤区南桥新城
用地面积:约3.7万平方米
建筑面积:约11.3万平方米
医院等级:三甲专科
床位数量:500床
项目状态:2024年9月开工,预计2027年3月竣工
总投资额:14.4亿元

复旦儿科奉贤院区,是奉贤第3家三甲医院,此外国妇婴奉贤院区已营业,新华医院奉贤院区将于今年年内全面建成,预计明年上半年投入运营。
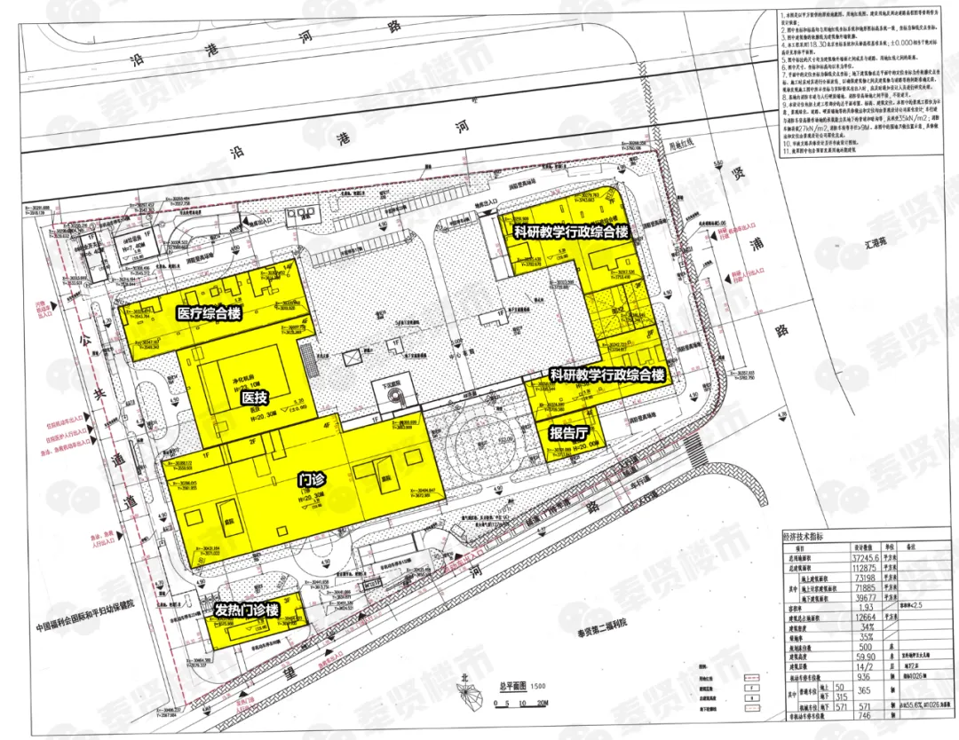
项目位于奉贤新城15单元,毗邻国妇婴,占地面积37246平方米,总建筑面积约112875平方米。院内共设床位500张,地上和地下车位共计约938个。


示意图
作为国家儿童医学中心的重要配套建设项目,复旦儿科奉贤院区将侧重承担新生儿临床中心和肿瘤中心的任务,形成特色鲜明的新生儿—围产医学、儿童早期发展、胚源性肿瘤诊治的学科高地。
院区效果图 来源网络

奉贤将迎来第三所三甲医院三甲医院的入驻将助力奉贤新城打造南上海医疗卫生高地亚洲妇儿医学中心
复旦儿科奉贤院区,位于奉贤新城15单元,项目四至范围为:东至贤浦路、南至望河路、西邻国妇婴奉贤院区、北至沿港河。占地面积37246平方米,总建筑面积约112875平方米。院内共设床位500张,地上和地下车位共计约938个。
作为国家儿童医学中心的重要配套建设项目,复旦儿科奉贤院区将侧重承担新生儿临床中心和肿瘤中心的任务,形成特色鲜明的新生儿—围产医学、儿童早期发展、胚源性肿瘤诊治的学科高地。